核心提示:在高新钧恒广场2号楼,我们深知每个企业都有其独特的风格与需求,因此特别提供精装修与毛坯两种办公空间供您选择。精装修办公室,以高品质的装修标准,为您营造出高端大气、舒适宜人的办公环境,让您无需耗费额外的时间与精力进行装修,实现轻松入驻,快速开展业务。

在粤港澳大湾区蓬勃发展的浪潮中,高新钧恒广场宛如一颗璀璨明珠,闪耀于广州市黄埔区开泰大道186号。这里,不仅是地理意义上的黄金交汇点,更是企业迈向辉煌的起点。
项目西面毗邻环城高速,犹如为企业铺设了一条直通广州核心城区天河区的快速通道,30分钟车程即可融入城市繁华核心。周边交通脉络畅达,与湾区节点城市1小时互达,北面距离6号线香雪地铁站仅900米,园区内贴心配备接驳车,周边多趟公交车穿梭往来,全方位满足企业便捷出行需求,让商务出行如虎添翼。

作为备受瞩目的 “独角兽大厦”,2号楼以非凡姿态傲立潮头。14米挑高首层大堂,气派恢弘,为企业打造尊贵门面,彰显非凡气度;中空夹胶LOW-E全玻璃幕墙,不仅赋予建筑现代感与艺术感,更营造出通透明亮的办公环境,让自然光线与清新空气在空间中自由流淌,为员工带来舒适愉悦的工作体验。
标准层高约4.2m,公共走道宽约1.8m,营造宽敞豁亮的商务空间,让视野无限延伸。密肋楼板模壳加空心网箱设计,赋予空间灵动魔方般的可塑性,可根据企业需求随心分拆组合,完美适配各类企业的发展蓝图,无论是企业总部、金融商务,还是商务办公、研发办公、高新企业、传媒、电商、展厅等行业,都能在此找到理想的空间布局。

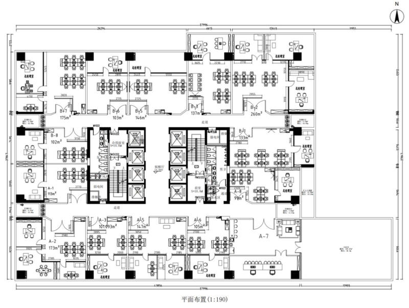
2号楼毛胚标准层户型图(整层面积1700㎡)

4楼平面图:99平方米:1间;101-175平方米:11间;260平方米:1间;预计改造13间小型办公区。
全落地窗与双面采光设计,让每一间办公室都沐浴在阳光之下,为创意灵感提供滋生的温床;无梁板结构设计,突破空间局限,优化每一寸使用空间,提升实用率,为企业创造更多价值。空调 / 电 / 新风系统已入户,24小时自控空调,随心调节温度,满足企业全天候办公需求,营造四季如春的办公环境。
园区配套设施一应俱全,堪称商务生活的 “梦幻之城”。麦当劳、鱼仔店等餐饮巨头汇聚,从快餐便餐到特色美食,全方位满足味蕾需求;希尔顿酒店、饭堂,为商务宴请与员工就餐提供多样化选择;地铁接驳车无缝衔接公共交通,公寓为外地员工提供温馨住所,健身房助力员工舒缓压力、强健体魄,咖啡店弥漫着浓郁的香气,激发无限创意灵感。这些配套如同一个个活力引擎,驱动着商务生态的蓬勃发展,让企业员工在忙碌工作之余,尽享生活的便利与精彩。

不仅如此,高新钧恒广场以豪华装修、智慧管理为基石,引入前沿科技,打造智能化办公空间,从门禁系统到办公设施管理,全方位提升办公效率与安全性。共享空间与政企共联的创新模式,为企业搭建起交流合作的广阔平台,促进资源共享与协同发展,让企业不再孤立,而是融入一个充满活力与机遇的商务共同体。优质服务团队全天候待命,以专业、贴心的服务理念,为企业解决后顾之忧,让企业全身心投入核心业务发展。租金优惠政策,更是为企业减轻负担,即租即用的高效模式,助力企业快速落地生根,抢占市场先机。
在高新钧恒广场2号楼,我们深知每个企业都有其独特的风格与需求,因此特别提供精装修与毛坯两种办公空间供您选择。精装修办公室,以高品质的装修标准,为您营造出高端大气、舒适宜人的办公环境,让您无需耗费额外的时间与精力进行装修,实现轻松入驻,快速开展业务。而毛坯办公室,则如同一张白纸,给予您无限的创意与想象空间,您可以根据企业的品牌形象与个性化需求,自由设计与打造专属的办公空间,让您的企业从一开始就与众不同,彰显独特魅力。

选择高新钧恒广场2号楼,不仅是选择了一处办公空间,更是选择了一种集高效、舒适、便捷、创新于一体的商务生活方式,为企业开启辉煌篇章提供强大助力。在这里,每一家企业都能找到属于自己的舞台,绽放独特光芒,共同铸就商业传奇。
本文转载来自:产商网,不代表产商网观点,如需转载请联系原作者。如涉及版权问题请联系产商网,电话:4008-338-308;邮箱:dichan001@qq.com
2024-06-29
独栋
2024-07-01
独栋高层
2024-07-18
高层
2024-07-10
独栋